Kalakruti

Type
Residential
Style
Modern
Location
Kahandala, India
Area
10.280 sq.ft.
Project Briefing

On the verge of retirement from his family business, the client decided to build a home where he could spend valuable time with family without any external interruption. Being born & brought up in a traditional South Indian family, he wanted an essence of his tradition & culture he belonged to in his dream home. This being a group project, my role was to conceptualize & design the interior space under the guidance of my head - Architect Siddharth Chavda.

Responsibilities

As part of the design team, I worked under the mentorship of architect Siddharth Chavda, contributing to the conceptual and interior design aspects of the project. My responsibilities involved developing spatial ideas that aligned with the client's vision, assisting in the selection of materials and finishes that echoed traditional themes, and ensuring a seamless blend of cultural elements within a modern architectural context. I actively participated in translating abstract inspirations into practical design solutions and helped prepare visual and technical documentation to support project execution. Collaborating closely with the lead architect and the rest of the team, I ensured that my inputs enhanced the overall coherence and cultural narrative of the design.

Design concept

Inspired by the vibrant essence of South Indian tradition, the design concept for this residence revolved around the colorful and aromatic presence of spices, which are integral to South Indian homes. Traditional South Indian aesthetics—marked by warm wooden furniture, cultural motifs, and handcrafted simplicity—formed the foundation of the visual language. The goal was to create an open, vibrant, and minimalist space that was still rich with cultural meaning. Key traditional elements such as a wooden swing, antique pillars, idols, and handcrafted furniture were introduced to transform a minimalist shell into a soulful and engaging living environment. The spatial organization also drew inspiration from the five elements of nature—Earth, Space, Water, Air, and Fire—each interpreted through the thoughtful use of materials and layout to enhance the sensory and emotional experience of the home.

Material board

The material palette was carefully curated to reflect the natural elements and traditional roots of South Indian architecture. Brick and Terracotta were used to express Earth and warmth. Glass introduced transparency and represented Space. Bamboo provided a sustainable and tactile element, referencing Air and organic fluidity. Metal added structure and fire-like resilience. These materials, in their raw and honest forms, helped establish a dialogue between tradition and modernity, allowing the architecture to feel both rooted and refined. The palette supported the spiritual and cultural narrative of the home while also enhancing its modern livability.

Responsibilities

As part of the design team, I worked under the mentorship of architect Siddharth Chavda, contributing to the conceptual and interior design aspects of the project. My responsibilities involved developing spatial ideas that aligned with the client’s vision, assisting in the selection of materials and finishes that echoed traditional themes, and ensuring a seamless blend of cultural elements within a modern architectural context. I actively participated in translating abstract inspirations into practical design solutions and helped prepare visual and technical documentation to support project execution. Collaborating closely with the lead architect and the rest of the team, I ensured that my inputs enhanced the overall coherence and cultural narrative of the design.

Design concept

Inspired by the vibrant essence of South Indian tradition, the design concept for this residence revolved around the colorful and aromatic presence of spices, which are integral to South Indian homes. Traditional South Indian aesthetics—marked by warm wooden furniture, cultural motifs, and handcrafted simplicity—formed the foundation of the visual language. The goal was to create an open, vibrant, and minimalist space that was still rich with cultural meaning. Key traditional elements such as a wooden swing, antique pillars, idols, and handcrafted furniture were introduced to transform a minimalist shell into a soulful and engaging living environment. The spatial organization also drew inspiration from the five elements of nature—Earth, Space, Water, Air, and Fire—each interpreted through the thoughtful use of materials and layout to enhance the sensory and emotional experience of the home.

Material board

The material palette was carefully curated to reflect the natural elements and traditional roots of South Indian architecture. Brick and Terracotta were used to express Earth and warmth. Glass introduced transparency and represented Space. Bamboo provided a sustainable and tactile element, referencing Air and organic fluidity. Metal added structure and fire-like resilience. These materials, in their raw and honest forms, helped establish a dialogue between tradition and modernity, allowing the architecture to feel both rooted and refined. The palette supported the spiritual and cultural narrative of the home while also enhancing its modern livability.

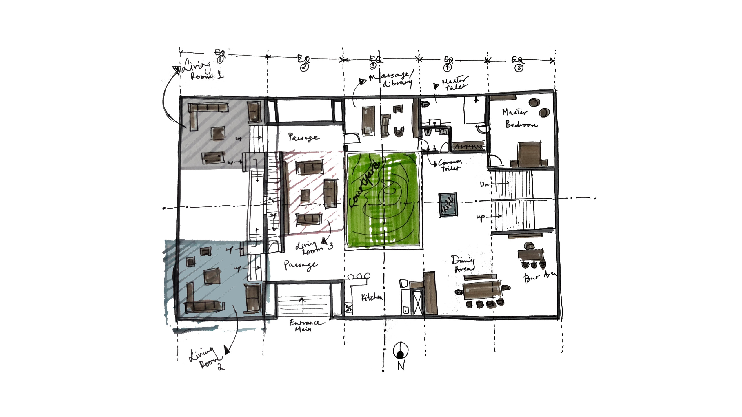
Drawings

Visual presentation

Kalakruti

Download a high resolution pdf of this project


DOWNLOAD