Safal

Type
Residential
Style
Scandinavian
Location
Ahmedabad
Area
16 sq.mt.
Project Briefing

This project being a turnkey project, all the kitchen ergonomics had to be taken into consideration. The kitchen is designed on Kitchen work triangle concept which is both aesthetic and functional. The work-flow of the kitchen is designed in the most efficient way for the user.

Responsibilities

I was involved in the project from concept to completion. I led the design development, focusing on creating a layout that adhered to ergonomic standards and optimized workflow. I was responsible for crafting the design concept, producing rendered visuals, and curating the material board that aligned with both functional and aesthetic goals. I prepared detailed technical drawings, including joinery details and custom cabinetry layouts, and ensured that all components were integrated with premium kitchen appliances and fittings. My role also included coordinating the material applications and assisting in the visualization and communication of the design intent throughout the execution phase.

Design concept

The design for the SAFAL kitchen was grounded in modern functionality, Scandinavian simplicity, and ergonomic precision, creating a space that is both visually calm and highly efficient. Inspired by Scandinavian principles, the layout emphasizes clean lines, natural materials, and minimalism, offering a clutter-free environment that promotes ease and comfort. The space was planned using the Kitchen Work Triangle and Zone-Based Planning, ensuring logical and intuitive workflows between food preparation, cooking, and cleaning zones. Core work areas like the sink and hob were deliberately isolated from traffic pathways to enhance safety and efficiency. Large surfaces and neutral tones maintain visual openness, while carefully selected materials and a soft, natural palette reflect a lifestyle centered around functionality, wellness, and simplicity.

Material board

The material palette was selected to balance durability, visual harmony, and easy maintenance. Compressed quartz was used for countertops and backsplashes for its sleek appearance and high performance. Satin-finished Neolith stone panels brought a soft, matte texture to vertical surfaces, while timber veneer cabinetry introduced warmth and material contrast. Stainless steel skirtings and trims were used for precision and longevity. The neutral tones were intentionally chosen to maintain visual calm and allow the functionality of the kitchen to take center stage. These materials together reinforced a clean, modern, and efficient aesthetic while supporting heavy use in a residential setting.

Responsibilities

I was involved in the project from concept to completion. I led the design development, focusing on creating a layout that adhered to ergonomic standards and optimized workflow. I was responsible for crafting the design concept, producing rendered visuals, and curating the material board that aligned with both functional and aesthetic goals. I prepared detailed technical drawings, including joinery details and custom cabinetry layouts, and ensured that all components were integrated with premium kitchen appliances and fittings. My role also included coordinating the material applications and assisting in the visualization and communication of the design intent throughout the execution phase.

Design concept

The design for the SAFAL kitchen was grounded in modern functionality, Scandinavian simplicity, and ergonomic precision, creating a space that is both visually calm and highly efficient. Inspired by Scandinavian principles, the layout emphasizes clean lines, natural materials, and minimalism, offering a clutter-free environment that promotes ease and comfort. The space was planned using the Kitchen Work Triangle and Zone-Based Planning, ensuring logical and intuitive workflows between food preparation, cooking, and cleaning zones. Core work areas like the sink and hob were deliberately isolated from traffic pathways to enhance safety and efficiency. Large surfaces and neutral tones maintain visual openness, while carefully selected materials and a soft, natural palette reflect a lifestyle centered around functionality, wellness, and simplicity.

Material board

The material palette was selected to balance durability, visual harmony, and easy maintenance. Compressed quartz was used for countertops and backsplashes for its sleek appearance and high performance. Satin-finished Neolith stone panels brought a soft, matte texture to vertical surfaces, while timber veneer cabinetry introduced warmth and material contrast. Stainless steel skirtings and trims were used for precision and longevity. The neutral tones were intentionally chosen to maintain visual calm and allow the functionality of the kitchen to take center stage. These materials together reinforced a clean, modern, and efficient aesthetic while supporting heavy use in a residential setting.

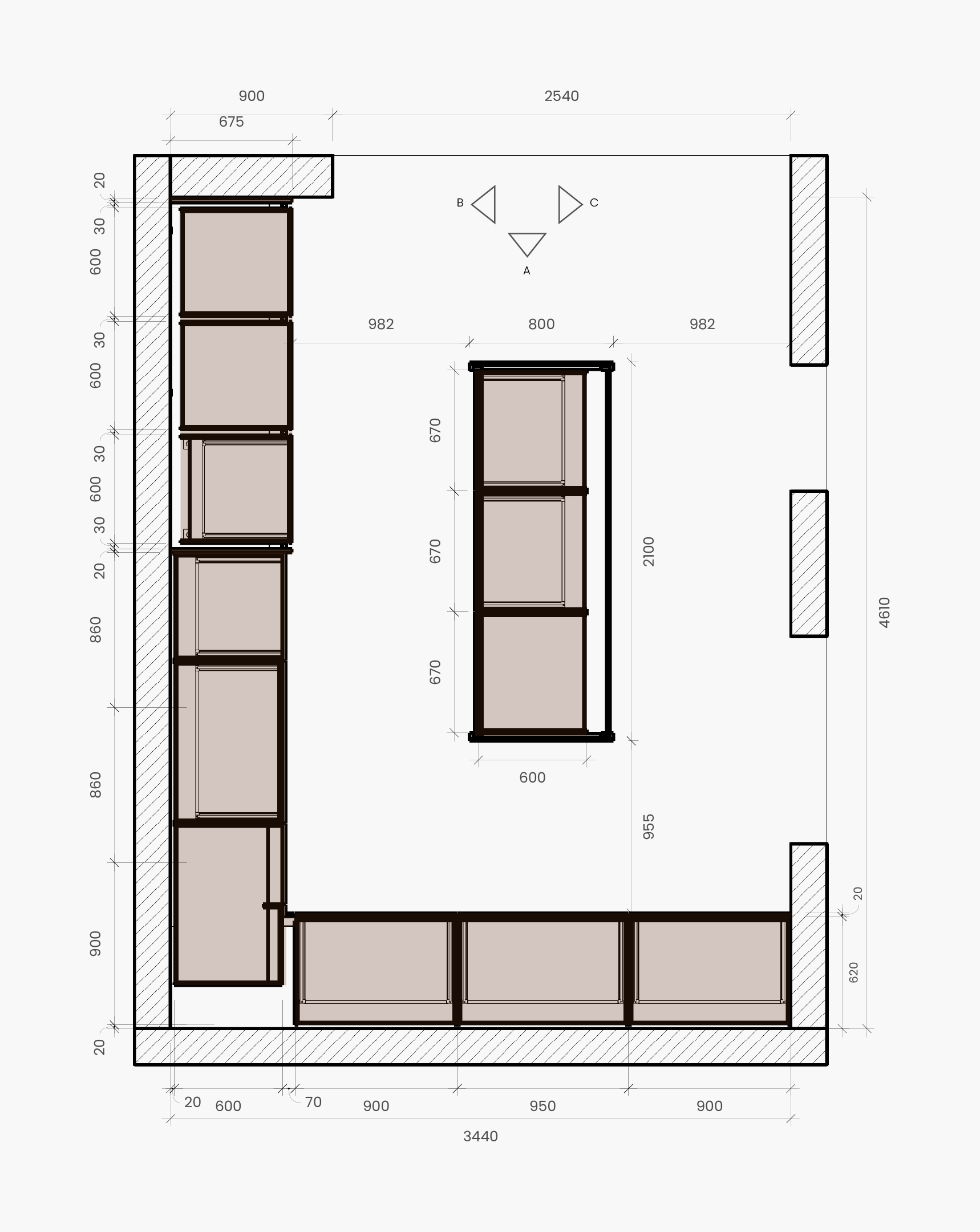
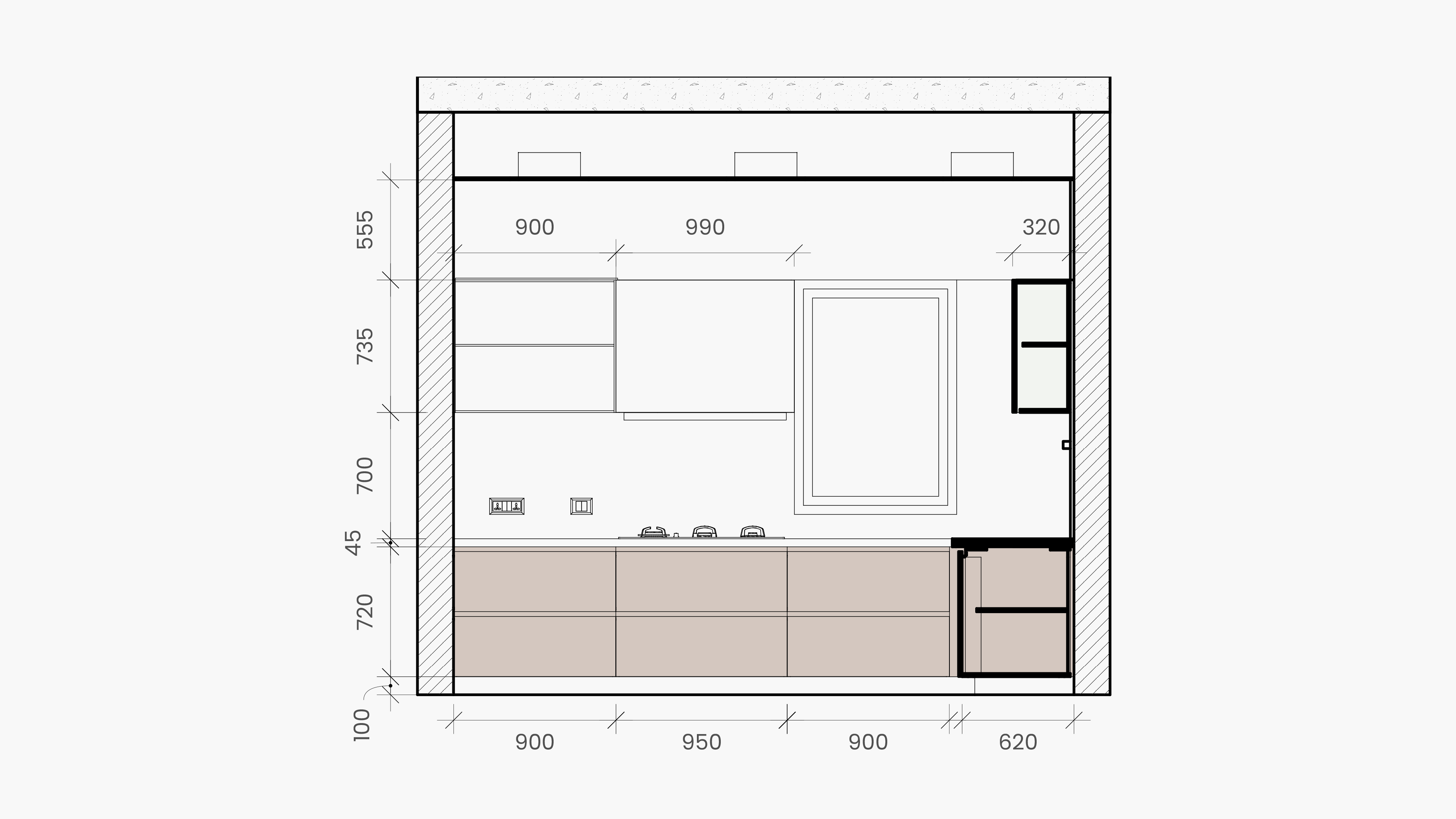
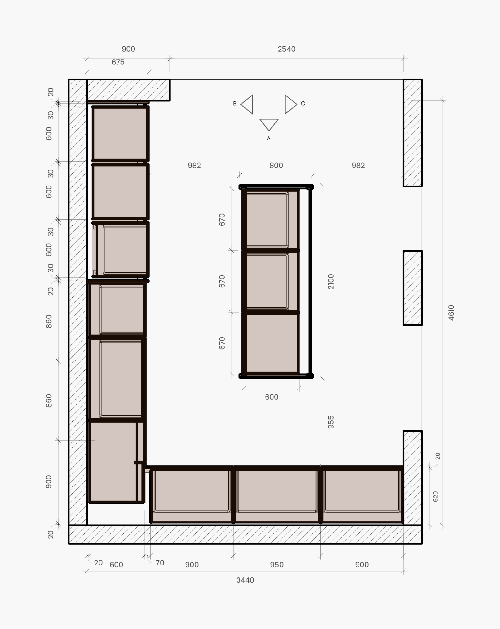
Drawings

Kitchen ergonomics

Kitchen work flow

The design layout has efficient and organized flow of tasks and movements within a kitchen space, from food preparation to cooking and serving. It involves the logical arrangement of different areas and components in the kitchen to optimize functionality and productivity. The workflow minimizes unnecessary steps, reduces congestion, and enhances overall efficiency.

Kitchen work triangle

By considering the kitchen work triangle, I ensured that the three essential work areas in the kitchen are arranged in a logical and efficient manner. The placement of these areas allows for easy movement and accessibility, reducing unnecessary steps and maximizing productivity during food preparation and cooking. This thoughtful design consideration contributed to an organized and functional kitchen layout.
Red - Cooking zone

Mixing bowls, Masala, Spices ,Herbs, Sauces, Oil & Ghee, etc. are within easy reach. The cooking area has been well-designed with a range cooktop with proper ventilation. It is positioned in close proximity to the food preparation zone to minimize the distance when transferring ingredients from one area to another.

This Zone includes Sink Unit as well as Household Cleaning Utilities. The sink and storage for cleaning supplies designed as parts of the cleaning/washing zone. This zone is placedĀ  near the food preparation and cooking areas, allowing for easy cleanup and dishwashing after meal preparation. Adequate countertop space is also provided for dish drying or other cleaning tasks.

Crockery, Cutlery, Glasses & Linens are organised in this Zone. These Items are stored in Cupboard, Shelves & Drawers. This zone is located near the food preparation area for easy access to ingredients.

This Zone includes both Fridge & Freezer. It contains both Chilled & Non-chilled Foods. Manage food stocks with easy access supplemental Food Storage. This zone is located near the food preparation area for easy access to ingredients.

Organize & store essential food preparation accessories like Cutting Board, Chopping Cutlery & small Utensils. Specific area for food preparation is designated, located near the sink and refrigerator. It is designed to facilitate easy access to essential tools and ingredients during meal preparation. Also, the serving zone is designed to promote seamless transition from cooking to serving for ease of convenience.

Safal

Download a high resolution pdf of this project


DOWNLOAD